3905 Park Lane, Granite City, Madison, IL, 62040, United States
Active
$325,000




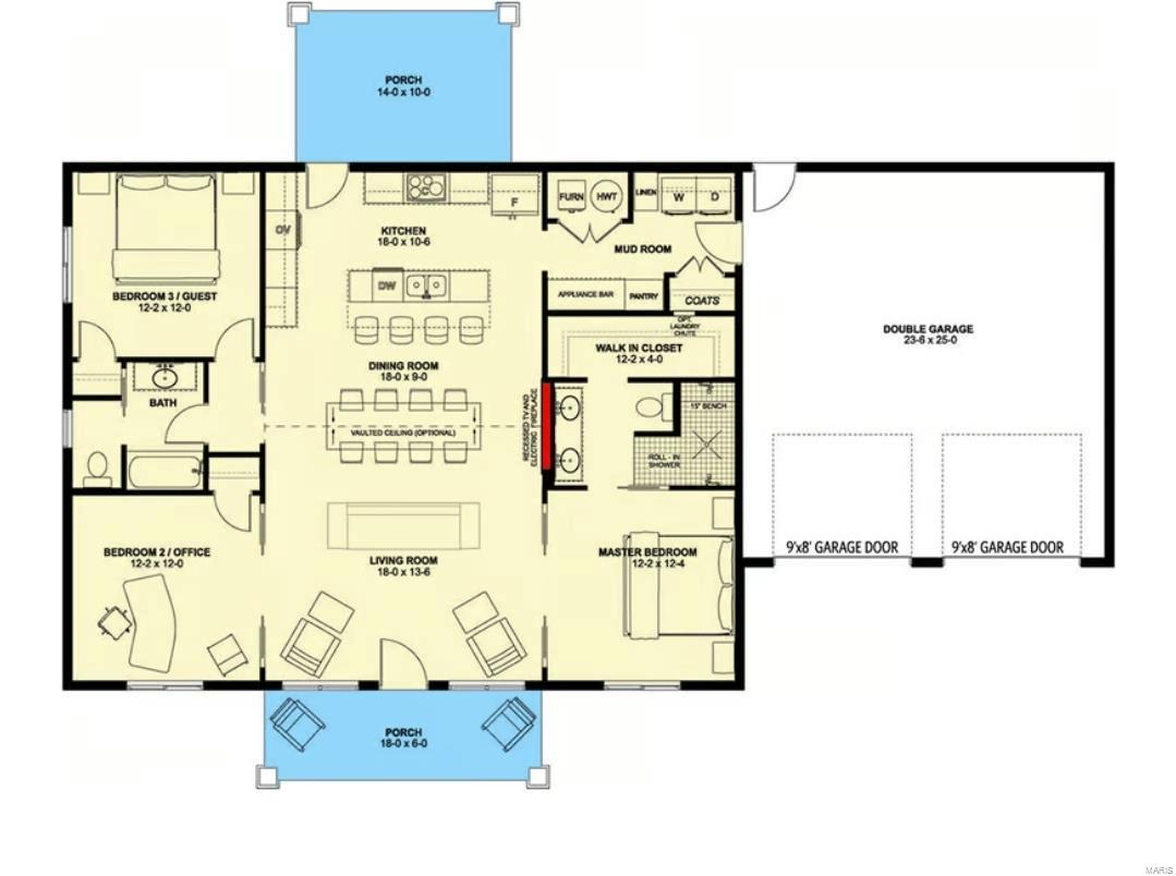
Modern comfort meets functional design. Your Dream home awaits. This stunning new construction opportunity offers a spacious, open concept design w/thoughtful detail throughout.
Gourmet kitchen: A center island w/seating for four, complemented by ample storage and walk in pantry. The dining room area boasts a recessed fireplace and swivel mount TV w/vaulted ceilings in the living room for an airy feel. Enjoy pocket doors connecting to the bedrooms and a spa-like master bath featuring a walk in shower w/dual heads, built in bench, and dual sink vanity along w/a walk in closet. Relax on the front covered porch and back patio.
Listing presented by Angela S Greco Coldwell Banker Brown Realtors
This walk in ready 3 Bedroom 2 Bath home on…
$232,000
Refined and Ready for its new owners! This stylish home…
$215,000