406 Grand Avenue Waterloo IL
Introducing this charming 3 bedroom, 1 bathroom home in a…
$170,000
355 Kingsbury Court, Highland, Madison, IL, 62249, United States
Active Under Contract
$359,900



















































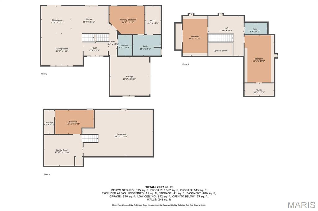
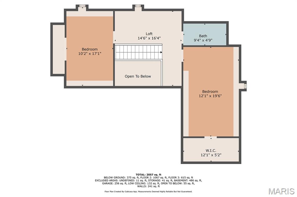
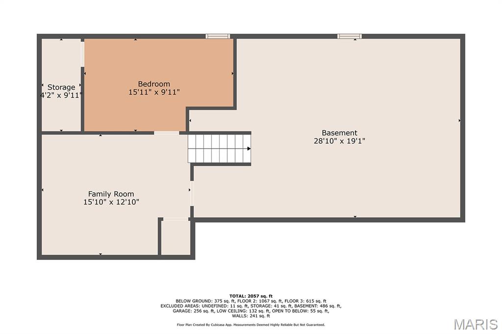
DON’T HEAD OUT OF TOWN UNTIL YOU’VE SEEN THIS STUNNER! BEATIFULLY UPDATED and CONVENIENTLY Located on a cul-de-sac in the FABULOUS CAMBRIDGE MEADOW neighborhood sits this EXTRAORDINARY 1 1/2 Story CHARMER! There’s Room for Everyone…BOTH INSIDE & OUT! You’ll be “Enchanted on Arrival” with the Impressive Front Entry, Side-Load Garage, Lovely Landscaping, Level Lot (PERFECT for OUTDOOR ENTERTAINING), NEWLY Fenced Yard & Shed! Step inside to be “Wowed” by the Spacious 2-Story Foyer that opens BEAUTIFULLY to the Living Room & nicely Accentuated by the Hard Wood Flooring, Newer Lighting & Fresh Paint! Living Room has Great Natural Lighting and is Open to the to the Dining & the recently RENOVATED Kitchen highlighted by the newer APPLIANCES (all stay including the Washer & Dryer!), Quartz Countertops, Updated Cabinets w/ New Hardware, Spacious Breakfast Bar and Plenty of Cabinets! Main Floor Master Suite is Accentuated with wood flooring and features a Large Ensuite with W/I Closet! Main Floor is nicely completed by the Half Bath & Laundry Combo. Upper-Level features an Office Area with 3 built-in desks making for a FANTASTIC WORKSPACE! There’s also a Full Bath & 2 Spacious Beds w/ large closets (Skylight Windows). Lower Level has a Fantastically-Finished Family Room, Bedroom (Egress) with W/I Closet (You’re going to LOVE the Closet Door!) and a HUGE unfinished Storage Area. Roof August 2025. Call your FAVORITE REALTOR Today!
Listing presented by Kim Johnson Equity Realty Group, LLC
Introducing this charming 3 bedroom, 1 bathroom home in a…
$170,000
Back on the market (no fault of the seller) With…
$230,000