1007 Jean Marie Street St Libory IL
Residential corner lot located in Sheppard Crossing Subdivision. Small town…
$18,490
302 E Bay Street, Pleasant Hill, Pike, IL, 62366, United States
Active
$129,000




















































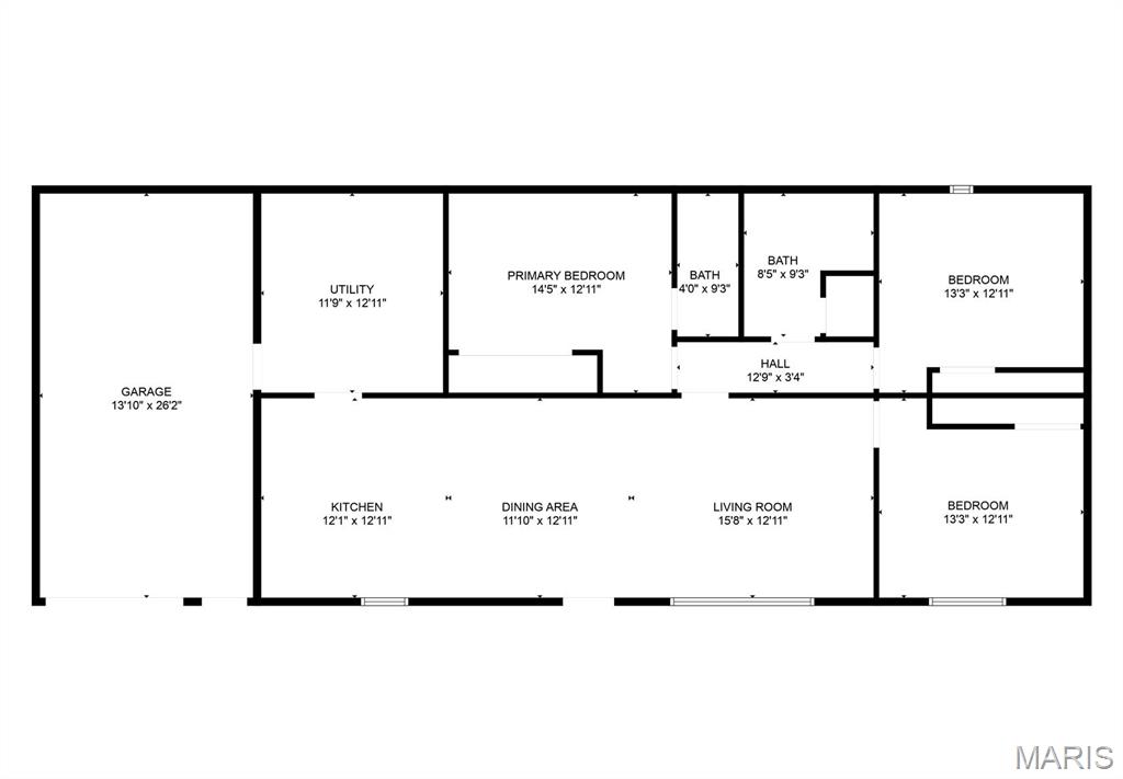
Welcome Home! Discover this underground home that has the perfect blend of privacy, efficiency, and modern living in this 3 bedroom, two bath home! All necessities on one level! Nestled on one acre on the edge of town, this property offers an oversized yard and peaceful surroundings while keeping you close to local conveniences. This property is within walking distance to the community school and community pool at the park. Inside, you’ll find an open concept kitchen, dining, and living area, creating an inviting space for family gatherings and entertaining. The master suite provides a private retreat while the attached one car garage adds convenience. Step outside and enjoy the 13 x 24 covered porch, perfect for entertaining or simply relaxing taking in the sunsets! With its energy efficient design and thoughtful layout, this home is a rare find. Don’t miss out!
Listing presented by Cyndi Borrowman Trophy Properties and Auction, LLC
Residential corner lot located in Sheppard Crossing Subdivision. Small town…
$18,490