1448 Guilford Place Troy IL
Stunning Contemporary Ranch with Split Floor Plan & Designer Finishes!…
$450,000
21604 Fox Drive, Carlyle, Clinton, IL, 62231, United States
Active
$249,900





































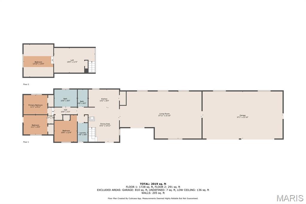
Spacious 4-Bedroom Home Near Carlyle Lake – Perfect for Entertaining!
Just minutes from scenic Carlyle Lake and conveniently close to Hickory Shores Resort and Harbor Light Bay, this well-maintained 4-bedroom, 2-bath home offers the best of both comfort and convenience. Whether you’re searching for a relaxing weekend retreat or a full-time residence, this property delivers functionality, charm, and proximity to one of Illinois’ premier outdoor destinations.
Inside, a spacious and inviting layout is highlighted by a large great room—ideal for entertaining family and friends. A cozy wood stove adds warmth and character, while the kitchen with walk-in pantry flows seamlessly into the main living area, creating the perfect space for gatherings. Step outside to a generous deck and open yard, offering endless opportunities for outdoor enjoyment. The impressive 4-car attached garage provides ample space for vehicles, boats, tools, and all your lake-life essentials. With marinas, fishing, boating, hiking, and more just minutes away, this home is the perfect blend of privacy and adventure.
Don’t miss your chance to own a slice of paradise near Carlyle Lake—schedule your private showing today!
Listing presented by Ed Kleber Equity Realty Group, LLC
Stunning Contemporary Ranch with Split Floor Plan & Designer Finishes!…
$450,000
SUMMER SPECIAL!!! $15,000 in free upgrades on all new contracts…
$319,900