1027 W 21st Street Granite City IL
Schedule a viewing today to discover the potential of this…
$25,000
21338 Double Arch Road, Staunton, Macoupin, IL, 62088, United States
Active
$375,000





















































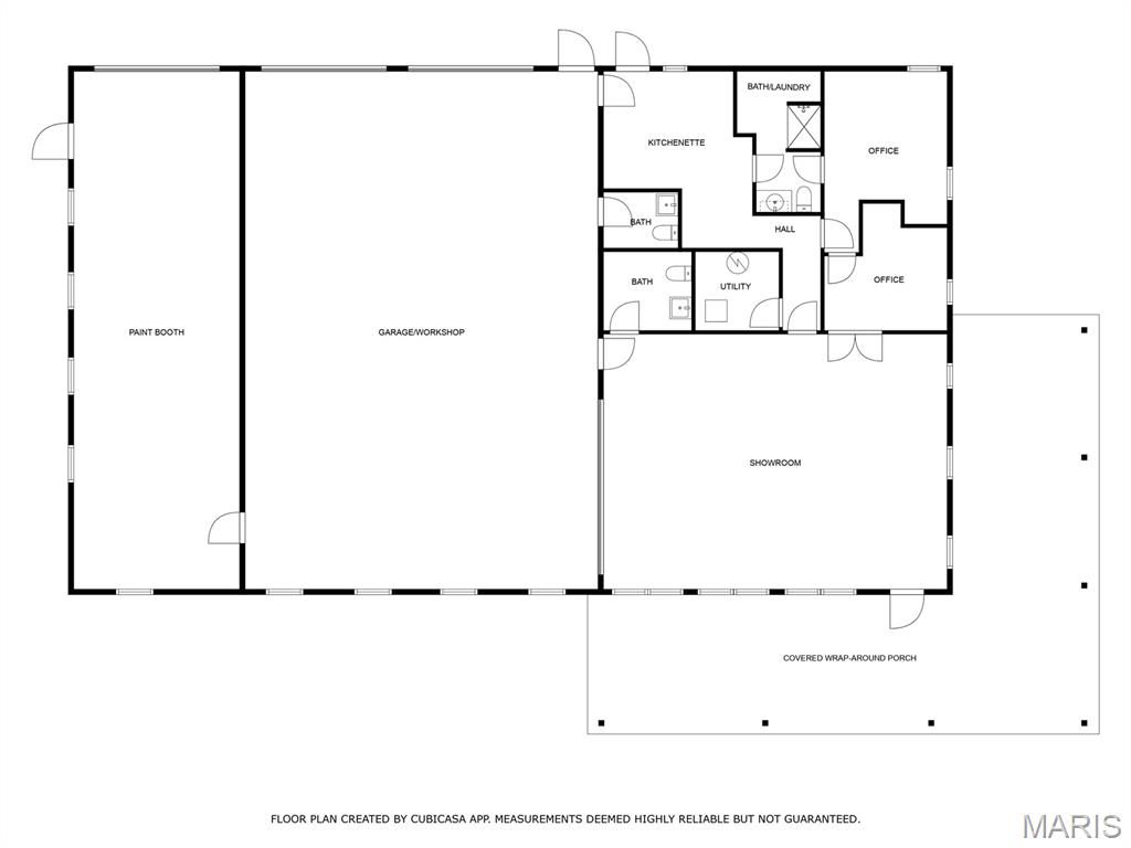
Prime Commercial Property with Exceptional I-55 Visibility! Strategically located on East Frontage Road (Double Arch Rd) just south of Mile Marker 41 and adjacent to Madison Telecommunications, this 2 acre commercial property offers unbeatable exposure along Interstate 55. The building features a spacious front showroom with a covered concrete patio, two private offices, a flexible kitchenette area (wired and plumbed), and three bathrooms; including a private bath with shower and laundry hookups.
The expansive shop includes three large bays, a paint booth, a vehicle lift, and an oil separator; ideal for auto repair or service based operations. Sturdy metal construction with concrete floors throughout. The fenced rear area provides added security, and the lot extends all the way back to the road, offering room for future expansion. Be sure to view the floor plan and virtual tour!
Don’t miss this rare opportunity to secure a high-visibility, move-in-ready commercial space on one of the most traveled corridors in Central Illinois.
Listing presented by Brandi Lentz MCR Realty Professionals, Inc
Schedule a viewing today to discover the potential of this…
$25,000
This large 2-story multi-use building offers significant potential due to…
$100,000