879 Old Quarry Trail Litchfield IL
RURAL RETREAT! Welcome to your private oasis! 4BR 2BA home…
$360,000
2100 Delmar Avenue, Granite City, Madison, IL, 62040, United States
Active
$135,000


















































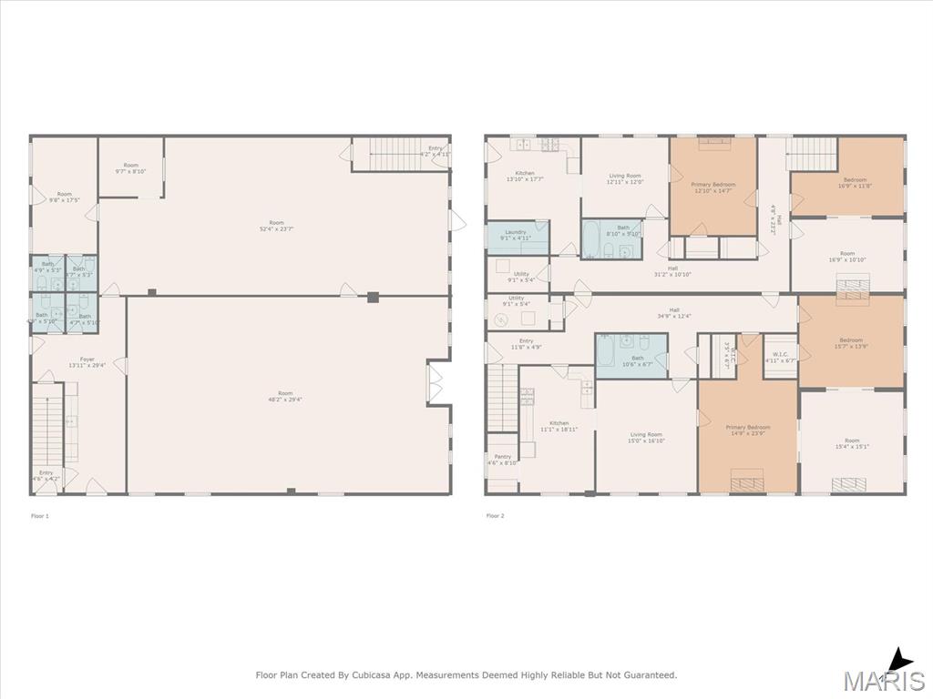
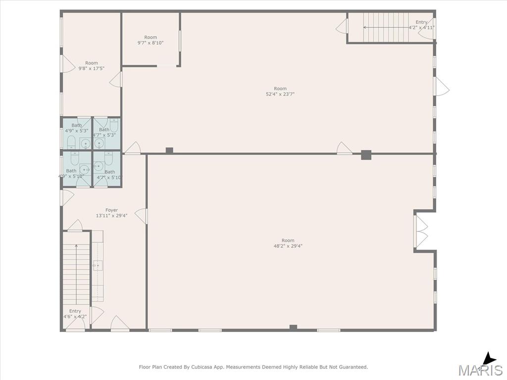
Call your favorite Realtor to check out this charming historic downtown building. 2 commercial spaces are offered on the ground floor, each with its own entrance facing 21st Street. Main level features a convenient kitchenette and four half-bathrooms. Upstairs are 2 spacious apartments, each with two bedrooms, a dining room and a full kitchen and bathroom with original woodwork and hardwood floors throughout. Each unit also has its own HVAC system, water heater, electrical service, and outside access from two locations. The property is being sold as-is, with no repairs from the seller. Additionally, a second adjacent land parcel at 2108 Delmar is included, which could potentially be converted into parking. Prime location and potential for revitalization, this building is an excellent investment opportunity! Before making an offer Buyer and/or buyer agent should verify all MLS data. Location: City, Downtown
Listing presented by Jeb Blasingame Keller Williams Marquee
RURAL RETREAT! Welcome to your private oasis! 4BR 2BA home…
$360,000
Small town charm in this adorable 1 and half story…
$64,900