9479 Schaefer Road Staunton IL
Discover the perfect opportunity to build your dream home on…
$130,000
1752 N Bluff Road, Collinsville, Madison, IL, 62234, United States
Active
$240,000



































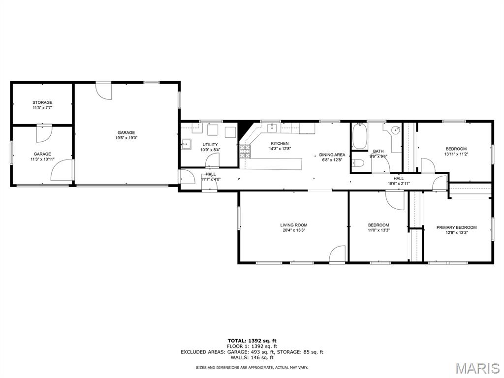
Must see! Charming 3-Bedroom ranch on 2 private acres of peaceful Living and endless possibilities! Escape the hustle and hassle of a subdivision and embrace country-style living with this well-maintained 3-bedroom, 1.5-bath ranch nestled on 2 beautiful acres. This home offers the perfect blend of space, privacy, and convenience—ideal for those looking to spread out, garden, or just have space. Inside, you’ll find a spacious living room filled with natural light, a functional eat-in kitchen, and three comfortable bedrooms. The full bath has been updated, and there’s plenty of closet and storage space throughout. The garage has plenty of room for vehicles as well as equipment. There is also a separate workshop or storage room in the garage. Step outside and enjoy beautiful views, mature trees, and room to roam. Whether you dream of starting a hobby farm, entertaining under the stars, or simply enjoying the peace and quiet, this property gives you the freedom to make it your own. Septic replaced in 2016, roof replaced in 2017, HVAC and water heater replaced in 2024. Additional highlights include a covered front porch, ample parking, and easy access to local schools, shopping, restaurants and highways—giving you the best of both worlds: privacy and convenience. Don’t wait, schedule a tour today!
Listing presented by Barry Schulhofer Strano & Associates
Discover the perfect opportunity to build your dream home on…
$130,000
Vacant lot available for purchase. Could be great to hold…
$5,000