611 W Main Street Collinsville IL
Residential or Commercial Opportunity… Situated in Uptown Collinsville sits this…
$120,000
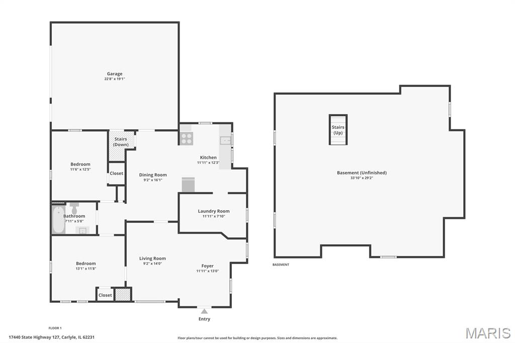
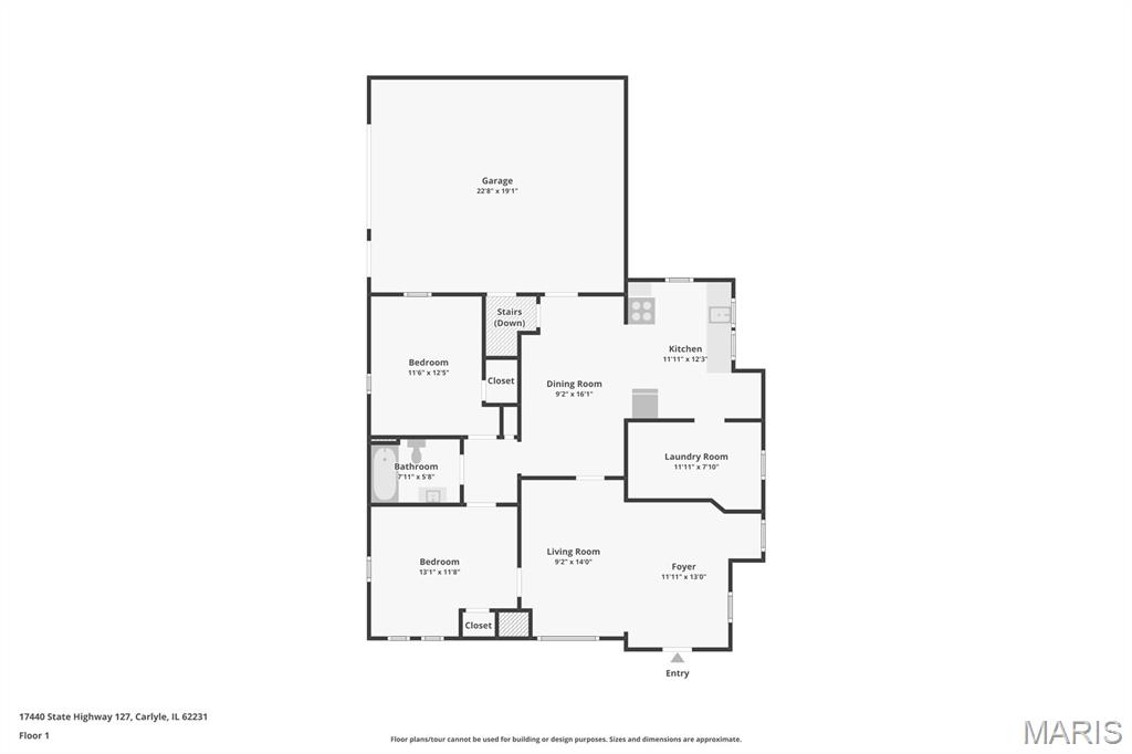
17440 Rt 127 , Carlyle, Clinton, IL, 62231, United States
Active Under Contract
$109,900


























Charming rural farmhouse ideally located near Carlyle Lake and Hazlet State Park—perfect for a weekend getaway or year-round living. This inviting property features an oversized attached one-car garage and is full of character, with stamped tin ceilings, original beadboard, and a built-in kitchen cabinet that enhance its rustic appeal.
The spacious kitchen, dining, and living areas are ideal for entertaining guests, while the large main-floor laundry room adds convenience with a built-in folding counter and clothes-hanging rod. A full basement provides generous additional space for storage, hobbies, or future finishing.
Don’t miss the opportunity to make this picturesque country home yours—schedule your visit today!
Listing presented by Chad Sellers Equity Realty Group, LLC
Residential or Commercial Opportunity… Situated in Uptown Collinsville sits this…
$120,000
Experience the ultimate in comfort and relaxation in this stunning…
$239,000