1120 Franklin Avenue Edwardsville IL
Listed below appraised value! Well-crafted Piedmont home on .92 acres.…
$749,500
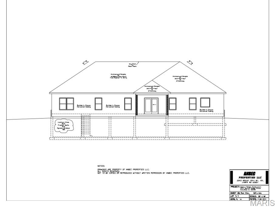
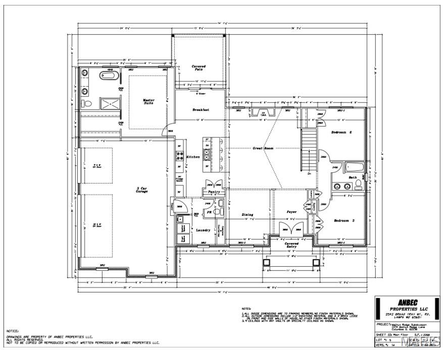
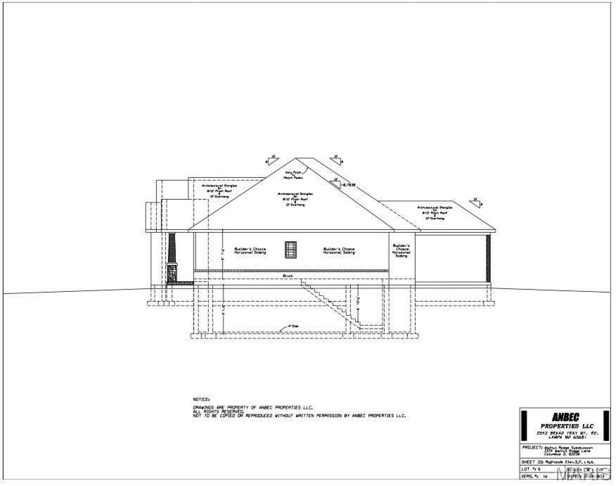
1374 Walnut Ridge Drive, Columbia, Monroe, IL, 62236, United States
Active
$725,000







New construction 3-bedroom, 2.5-bath home in a charming small-town setting within the Columbia School District! This split-bedroom floor plan features an open-concept layout, gas fireplace, dining room/home office, and main-floor laundry. Enjoy a covered deck with lighting and ceiling fan, perfect for entertaining. The 3-car side-entry garage and walk-out basement with 9′ pour provide space and future expansion (finish for added square footage, extra cost). Still time to personalize with your choice of brick, roof, siding, cabinetry, flooring, countertops, appliances, backsplash, doors, paint color, and composite decking. Located just 20 minutes from St. Louis, enjoy easy access to professional sports, dining, shopping, and top-rated medical facilities. This is the ideal blend of small-town living with big city convenience. A rare opportunity to create your perfect home in one of the Midwest’s most desirable locations. Schedule your showing today! Estimated Completion date to be approximately 3-4 months from accepted offer (depending on buyer selections and availability).
Listing presented by Angela Laskowski RE/MAX Preferred
Listed below appraised value! Well-crafted Piedmont home on .92 acres.…
$749,500
Attention all investors and rehabbers! Here’s your chance to transform…
$135,000