404 Rumsfeld Drive Troy IL
Open House Sunday 27JUL from 1p-2:30p Brand new Construction from…
$499,900
115 W 4th Street, Sparta, Randolph, IL, 62286, United States
Active
$155,000
































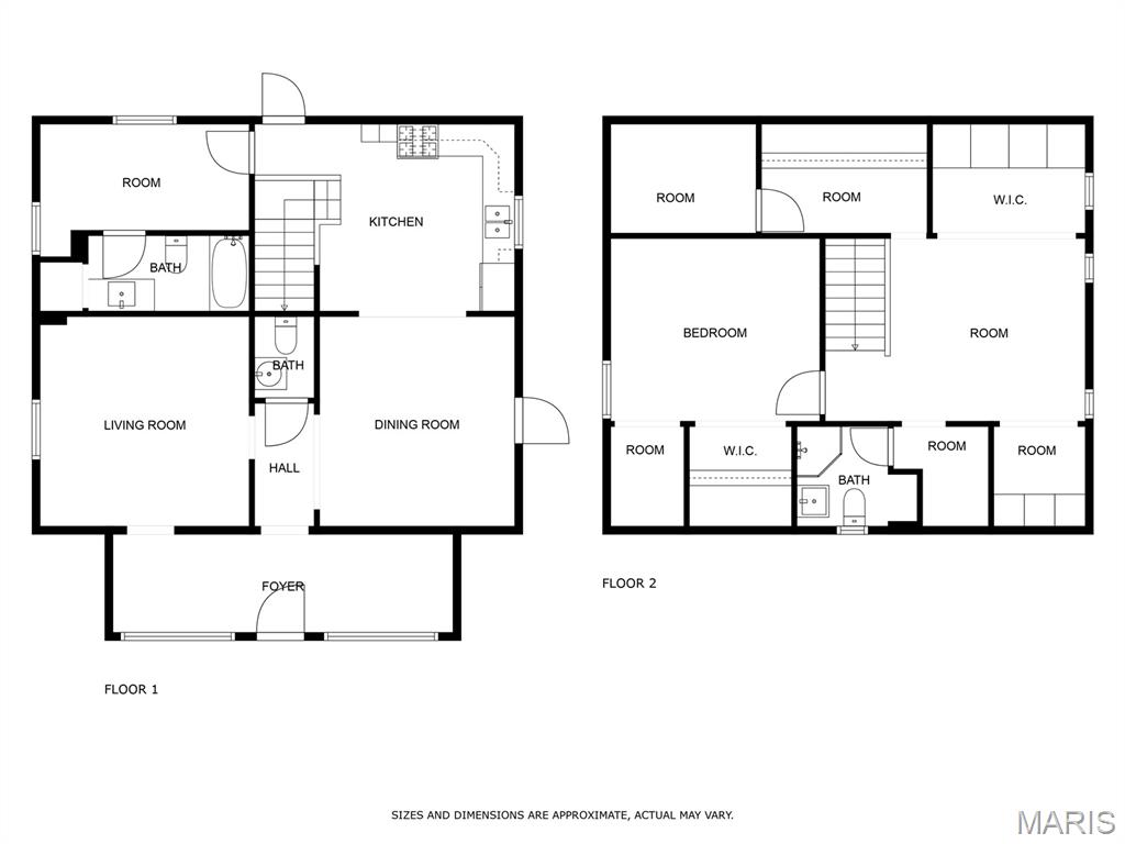
Step inside this beautifully updated 2-bedroom, 2.5-bath home and fall in love with its modern charm and inviting style. Featuring granite countertops, stylish shiplap accents, and updates throughout—including a new furnace (2023) for year-round comfort.
Enjoy the convenience of a spacious laundry room/mud room and a covered back area. The property also offers space and potential to build a garage, giving you room to expand as you wish.
This home is a true gem that combines function, style, and updates you’ll appreciate from day one!
Listing presented by Amber Skinner Property Peddler, Inc
Open House Sunday 27JUL from 1p-2:30p Brand new Construction from…
$499,900
Step into this eye-catching brick ranch on a sprawling half-acre…
$147,900