8 Concord Drive Belleville IL
This adorable home has so much character and charm to…
$105,000
109 S Bess Avenue, Marissa, St. Clair, IL, 62257, United States
Active
$195,000


















































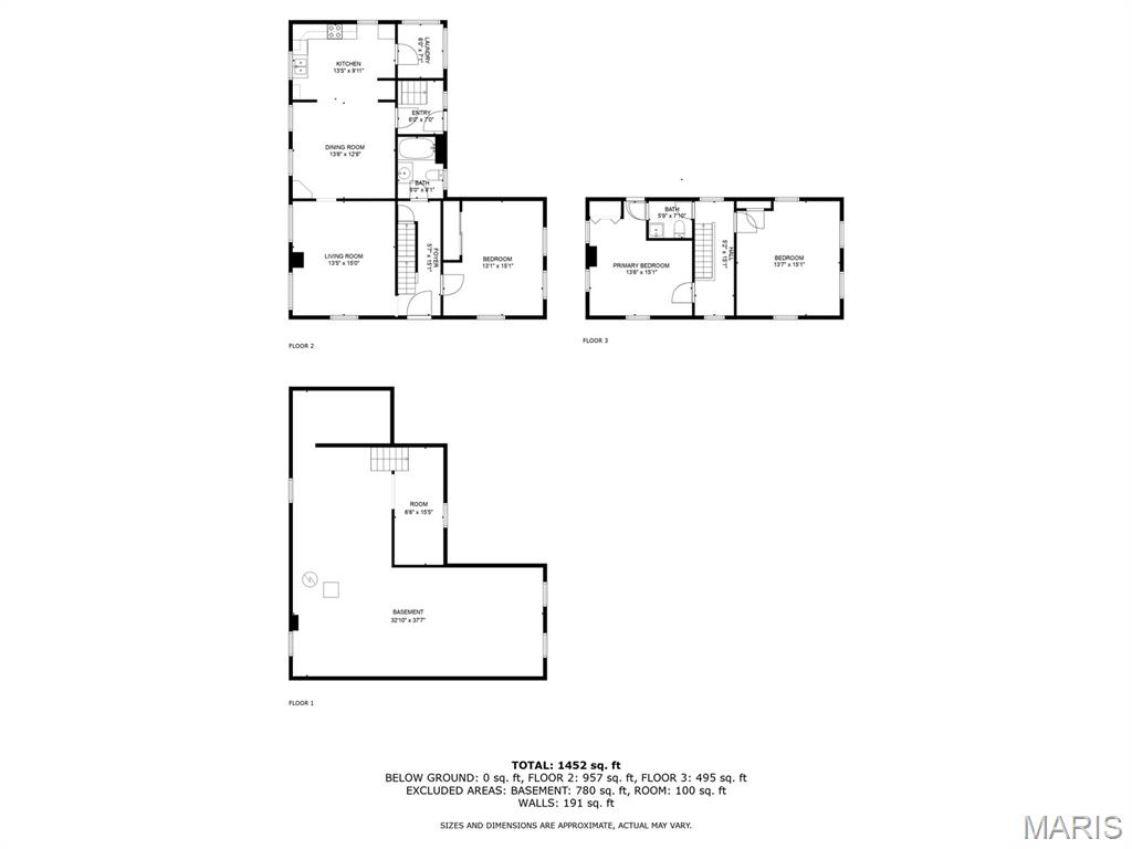
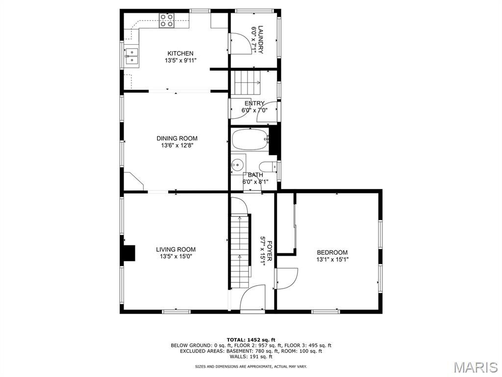
This beautifully updated 3-bedroom, 1 1/2-bath home, blends timeless character with today’s modern conveniences. Recent updates include a new HVAC system, new plumbing, and water heater, plus a complete electrical upgrade with new panel, outlets, switches, and fixtures. The kitchen has been fully remodeled with new cabinets, countertops, and all new appliances, while the bathroom features a stylish, modern renovation. Inside, you’ll find fresh paint throughout, new trim, baseboards, and eight new doors, giving the home a crisp, updated feel. Exterior improvements include a new roof, new gutters, rebuilt deck railings with fresh paint, and some new windows. The spacious yard offers room for outdoor enjoyment, gardening, or entertaining in a quiet neighborhood setting.
With modern updates throughout and a small-town feel, this move-in ready home is the perfect blend of comfort, style, and charm.
Listing presented by Brad Chandler Property Peddler, Inc
This adorable home has so much character and charm to…
$105,000
Excellent Income and Investment. This 10,700 sq ft Commercial building…
$496,000